Moderne kubustische woning M108
Eigentijdse moderne villa onder architectuur.
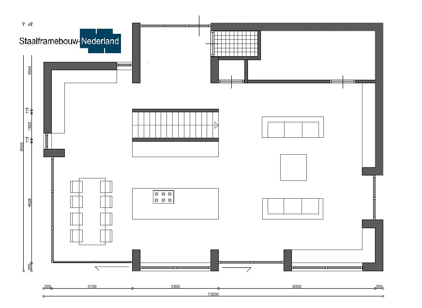
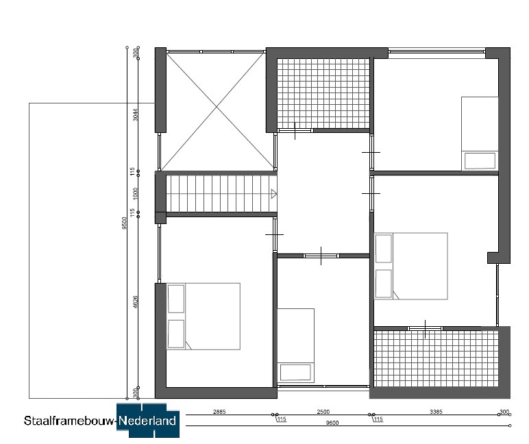
Onderstaand vindt u een voorbeeld van de ruimte-indelingen van dit ontwerp. De indeling is volledig aan te passen aan uw eigen wensen: ruimtes kunnen verdwijnen, worden toegevoegd of worden aangepast qua afmetingen.
Bouwsom Ontwerp M108
bouwsom: stuur een mail





