Moderne kubistische woning M26
Kubistische vrijstaande villa met inpandige garage en verdiepingsterras. Passief of Energieneutraal gebouwd
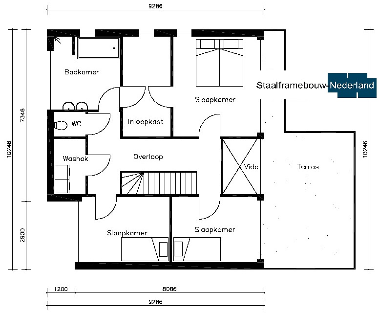
Onderstaand vindt u een voorbeeld van de ruimte-indelingen van dit ontwerp. De indeling is grotendeels volledig aan te passen aan uw eigen wensen: ruimtes kunnen verdwijnen, worden toegevoegd of worden aangepast qua afmetingen.
Bouwsom ontwerp M26
bouwsom: stuur een mail!





