Klassieke woning HN18
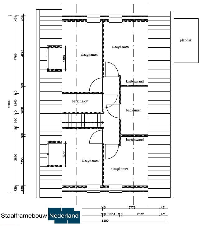
Onderstaand vindt u een voorbeeld van de ruimte-indelingen van dit ontwerp. De indeling is grotendeels volledig aan te passen aan uw eigen wensen: ruimtes kunnen verdwijnen, worden toegevoegd of worden aangepast qua afmetingen.
Bouwsom ontwerp HN18
Bouwsom? stuur een mail!








