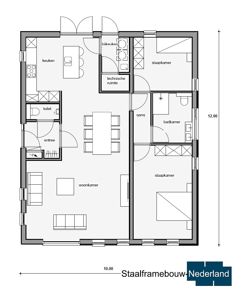
Bungalow B114
Onderstaand vindt u een voorbeeld van de ruimte-indelingen van dit ontwerp. De indeling is volledig aan te passen aan uw eigen wensen: ruimtes kunnen verdwijnen, worden toegevoegd of worden aangepast qua afmetingen.
Bouwsom Ontwerp B114
Bouwkosten stuur een mail!





